Design Approach
The Diamond Springs Model Park was designed to create a polished first impression that blends model home merchandising with a warm, lifestyle-driven residential experience. Township Design transformed a compact model home setting into an inviting destination where buyers can immediately understand the character and outdoor potential of the community.
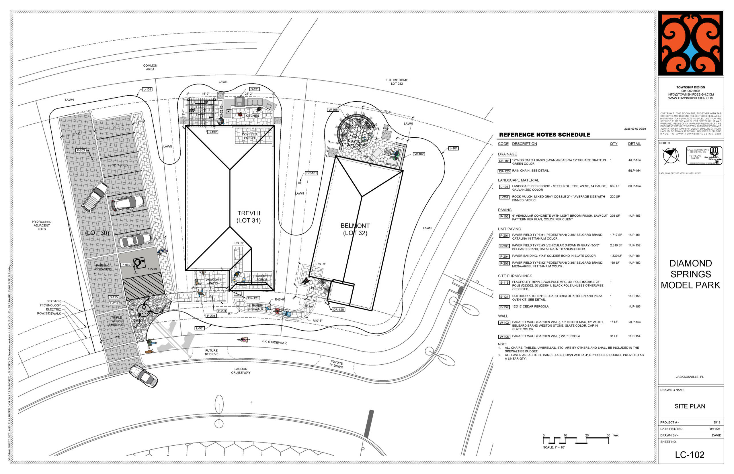
The plan organizes parking, pedestrian movement, upgraded planting, and outdoor living features into a cohesive arrival experience. Rather than relying solely on the homes themselves, the surrounding landscape becomes an active sales tool—demonstrating comfort, beauty, and functional outdoor spaces that resonate with future homeowners.
Key Features
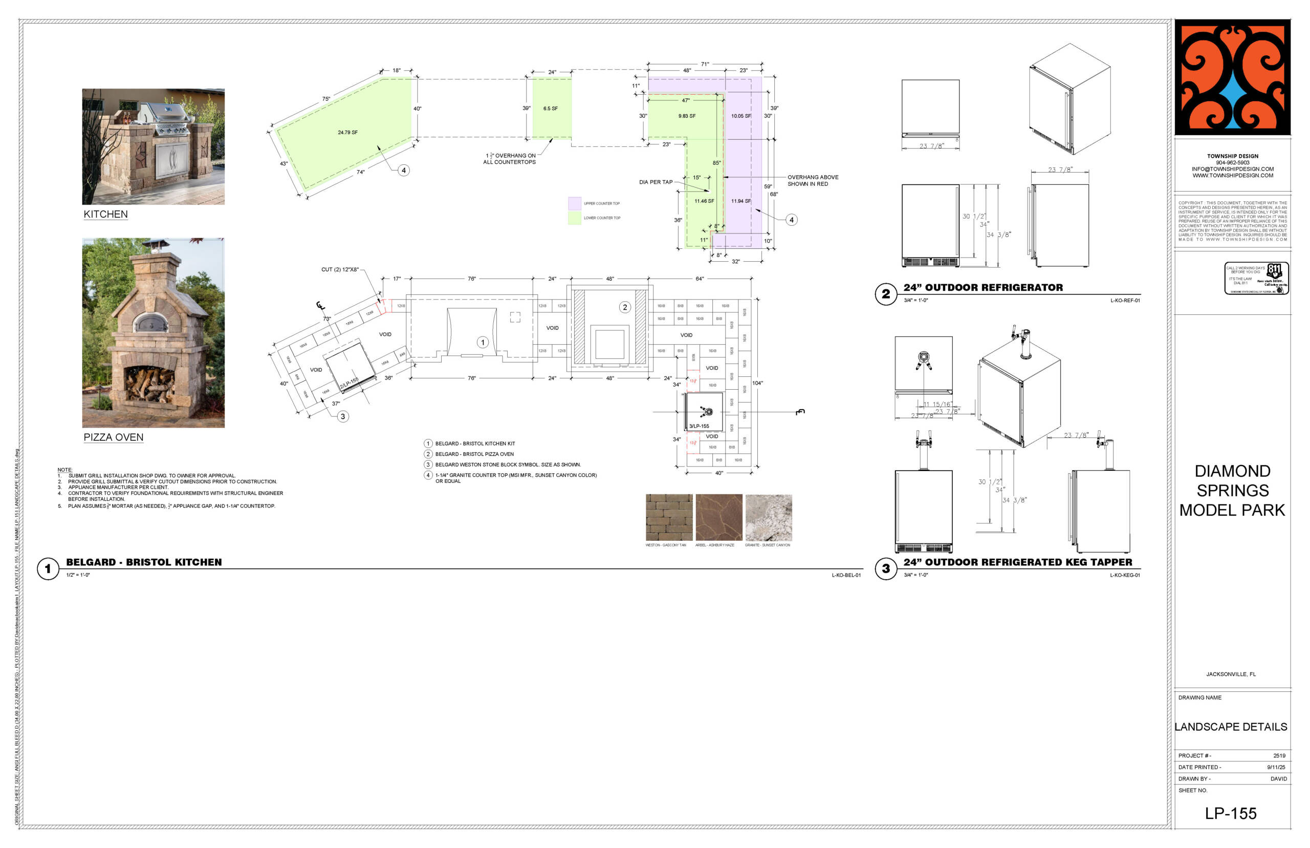
Refined entry sequence with decorative paver drive, model guest parking court, lush streetscape planting, upgraded foundation landscapes, custom patios, pergola gathering spaces, outdoor kitchen showcase, privacy screening, layered tropical accents, enhanced walkways, and coordinated outdoor rooms designed to highlight lifestyle possibilities.
Outcome
The final composition elevates the Diamond Springs Model Park beyond a temporary sales center into a memorable branded environment. By combining strategic circulation, strong curb appeal, and aspirational outdoor amenities, the development gains a more marketable presence and a stronger emotional connection with prospective buyers.