Skip to content Skip to sidebar Skip to footer

RISE Corporate Headquarters

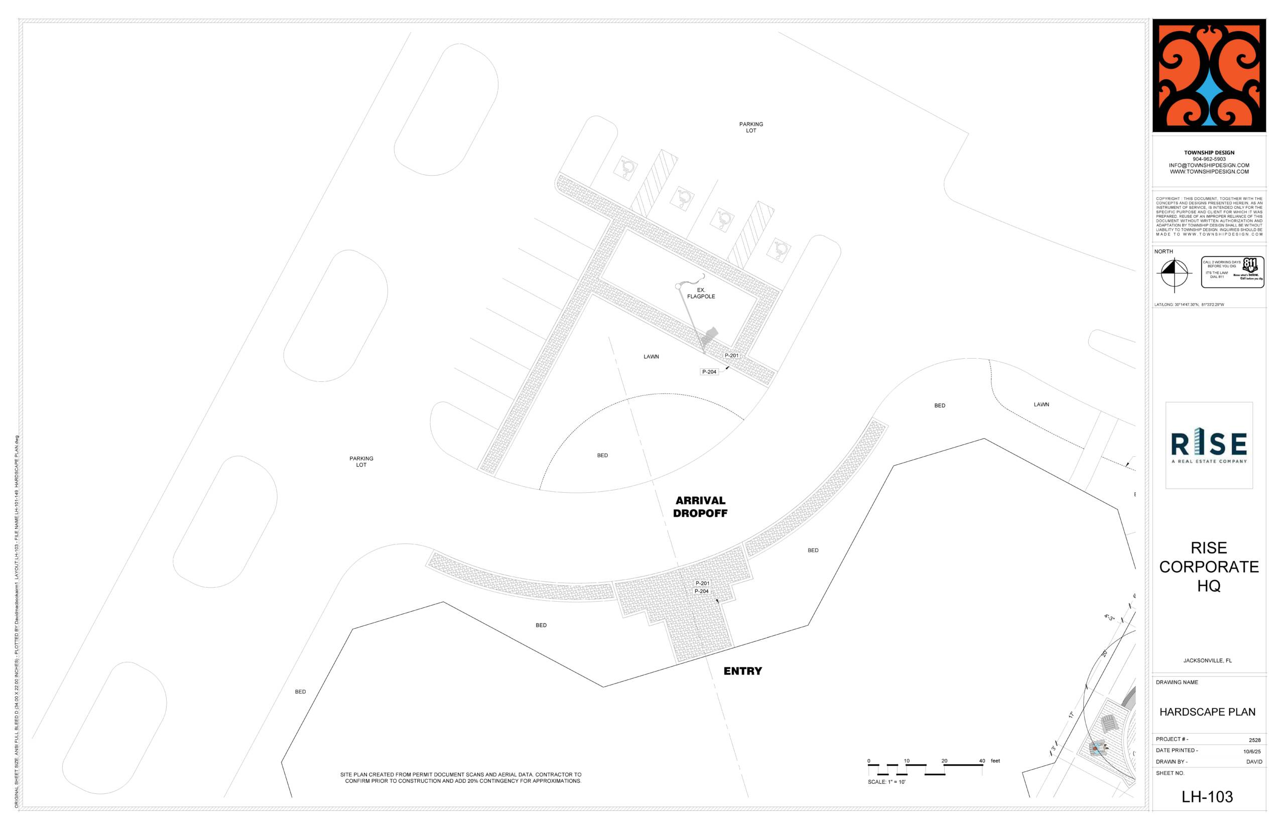
Image of a site plan rendering of the design.

We recently reimagined the outdoor spaces for a nationally recognized real estate development company through a corporate landscape design in Jacksonville, Florida.

Landscape design rendering for RISE corporate headquarters in Jacksonville, Florida.

RISE first connected with Alex Reed of R & R Northeast Florida to explore ways to improve the spaces around its Jacksonville headquarters. Shortly after, Alex brought us into the conversation. Following a site visit and lunch, we aligned on a clear goal: create flexible outdoor spaces that support connection, creativity, and everyday use.

From the start, the design focused on variety and flow. A shaded deck sits beneath mature live oaks, offering a comfortable place to gather. Just beyond, a lakeside patio anchors the site with a circular seat wall and a flowering tree at its center. At the same time, the entry now features colorful, tropical plantings, tall majool palms, and evergreen hedges to create a welcoming first impression.

In addition, we introduced spaces for axe throwing, horseshoes, and food trucks. These activity areas connect through gently curving paver walkways that guide movement across the site. Throughout the design, layered plantings add shade, soften hard edges, and strengthen the overall character of the campus.

Landscape design rendering for RISE corporate headquarters in Jacksonville, Florida.

Ultimately, this project reflects our approach to corporate landscape design in Jacksonville—creating outdoor environments that feel welcoming, functional, and built to last.

We’re excited to help bring this energetic workplace landscape to life.

👉 Ready to transform your own outdoor space?
Request a consultation or visit www.townshipdesign.com/contact

Landscape Design Consultation Request

Name
A simple explanation of what you are interested in accomplishing with your design is all we need here. We will contact you to go over everything in more detail.