Skip to content Skip to sidebar Skip to footer

1950 West End Residence

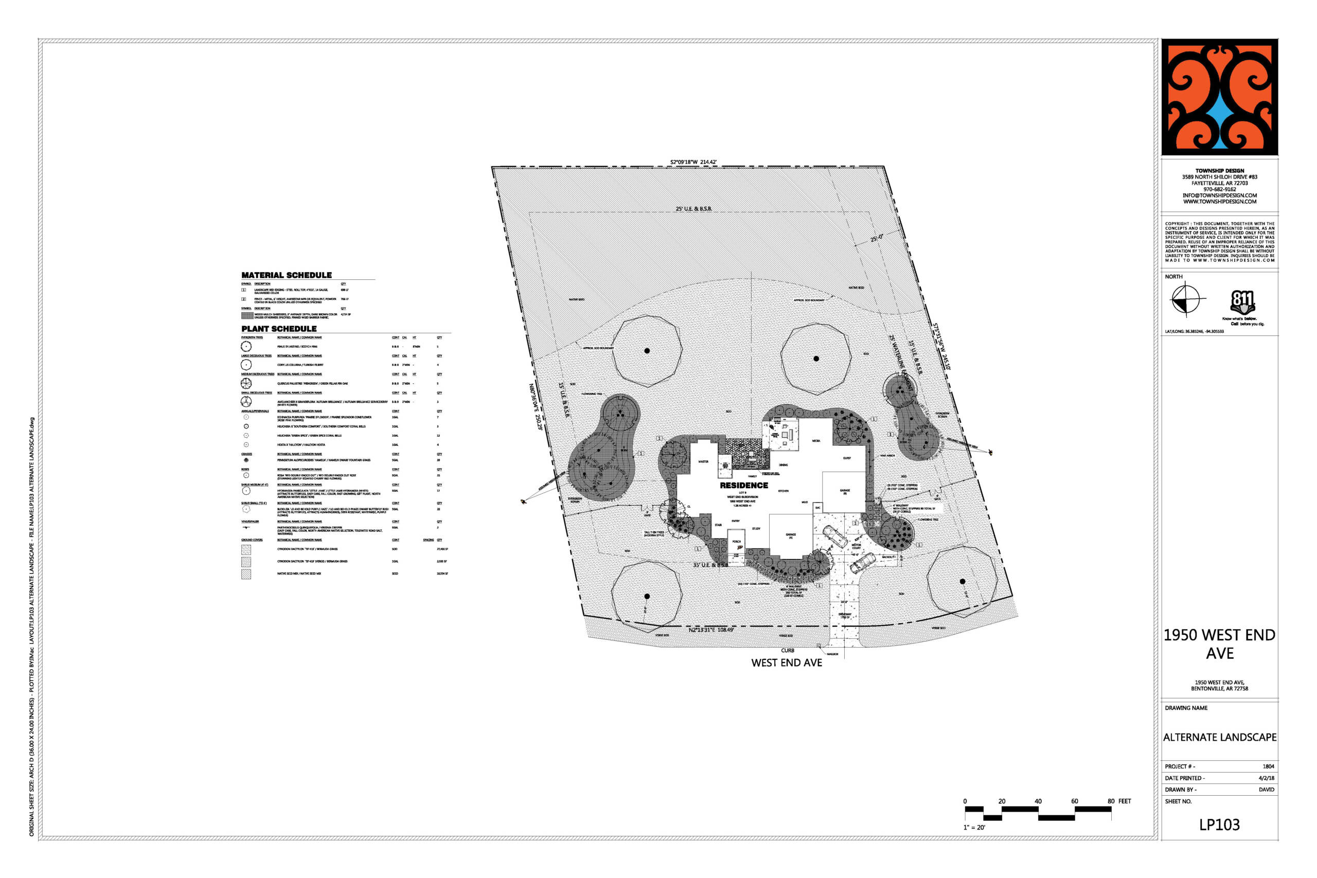
Design Approach

A custom residential landscape vision centered on creating a timeless estate setting that complements the home’s architecture while improving the flow, comfort, and usability of the outdoor spaces. The design balances strong curb appeal with comfortable daily living, using clean geometry, layered planting, and thoughtful spatial organization to unify the property.

Key Features

Refined front arrival planting, expanded driveway and entry sequence, resort-style pool terrace, covered entertaining areas, layered foundation landscaping, privacy screening, sculpted lawn areas, and garden spaces designed for both beauty and function. The plan also incorporates integrated circulation routes and distinct outdoor rooms for gathering, recreation, and relaxation.

Outcome

A cohesive outdoor environment that feels elegant, functional, and tailored to the property—enhancing curb appeal, daily living, and the long-term value of the residence. The final composition creates a seamless relationship between architecture, landscape, and lifestyle.

Landscape Design Consultation Request

Name
A simple explanation of what you are interested in accomplishing with your design is all we need here. We will contact you to go over everything in more detail.